Neues Gewerbegebiet Rath-Anhoven
Neues Gewerbegebiet in Rath-Anhoven
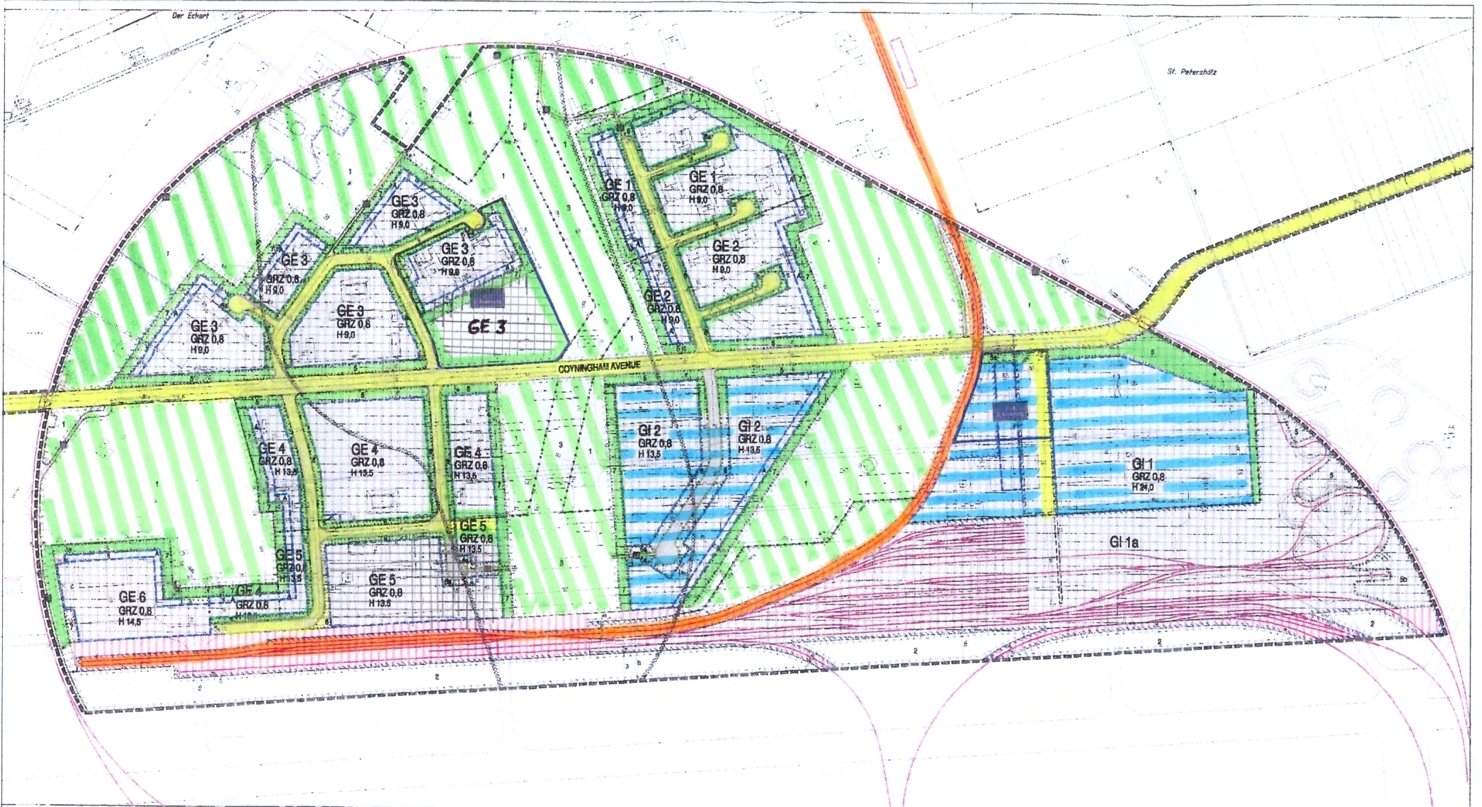
Um die anhaltende Nachfrage nach Gewerbegrundstücken zu befriedigen entwickelt die Stadt und die Stadtentwicklungs- und Wirtschaftsförderungsgesellschaft mbH (SEWG) derzeit eine 8 Hektar große Fläche im Stadtteil Rath-Anhoven. Hier steht alles unter dem Zeichen „Flexibilität“.
Sollten Sie Interesse haben, können Sie sich den für sie günstigsten Standort auswählen und somit aktiv Einfluss auf einen passgenauen Zuschnitt der Grundstücksgrößen nehmen. Die modernsten Versorgungs- und Kommunikationsleitungen sind selbstverständlich. Die Infrastruktur und die Standortlage ergänzen sich perfekt. Das Gewerbegebiet liegt direkt an der B57. Hieraus ergibt sich eine optimale logistische Anbindung über die Autobahnen A 46 und A61 an die Ballungszentren, Mönchengladbach, Neuss, Düsseldorf, Köln und Aachen und die Nachbarn in den Niederlanden und Belgien können schnell angesteuert werden.
In persönlichen Beratungsgesprächen können Sie Ihre Vorstellungen zur optimalen Grundstücksgröße, Zufahrtswegen, baulichen Anforderungen oder Begrünungsflächen einbringen.
Gerne können Sie sich von dem Imagefilm des neuen Gewerbegebietes inspirieren zulassen.
Kommen Sie zu uns, wir beraten Sie gerne!
Der schnelle Weg zu uns:
Stadtentwicklungs- und Wirtschaftsförderungsgesellschaft mbH (SEWG)
Tel.: 02434 – 240080
E-Mail: info@sewg-wegberg.de
oder
Stadt Wegberg
Tel. 02434 83 – 208 (Nina Vieth)
E-Mail: nina.vieth@stadt.wegberg.de
